En location Bien 27 m2
| Ville | Gignac-la-Nerthe |
| Code postal | 13180 |
| Type de bien | Bien |
| Surface | 27 m2 |
| Nombre de pièces | |
| Prix | 920,00 € |
| Informations sur l'annonceur | |
|---|---|
| Annonce de professionnel |
|
| Agence | PEPS'IMMO Voir toutes les annonces |
| Adresse | |
| 13500 Martigues | |
| Portable | 0662070399 |
Description
À LOUER ? Local professionnel 27 m² ? Gignac-la-Nerthe
Au sein d'un pôle de santé agréable, bénéficiant d'espaces verts et de parkings à proximité, l'agence PEPS'IMMO vous propose un cadre confortable et parfaitement adapté à l'exercice de votre activité.
Vous profiterez d'équipements pensés pour votre confort et celui de votre patientèle : salle de repos, salle d'attente, accès aux normes PMR, etc.
Local exclusivement réservé aux professionnels médicaux et paramédicaux.
Disponible début avril.
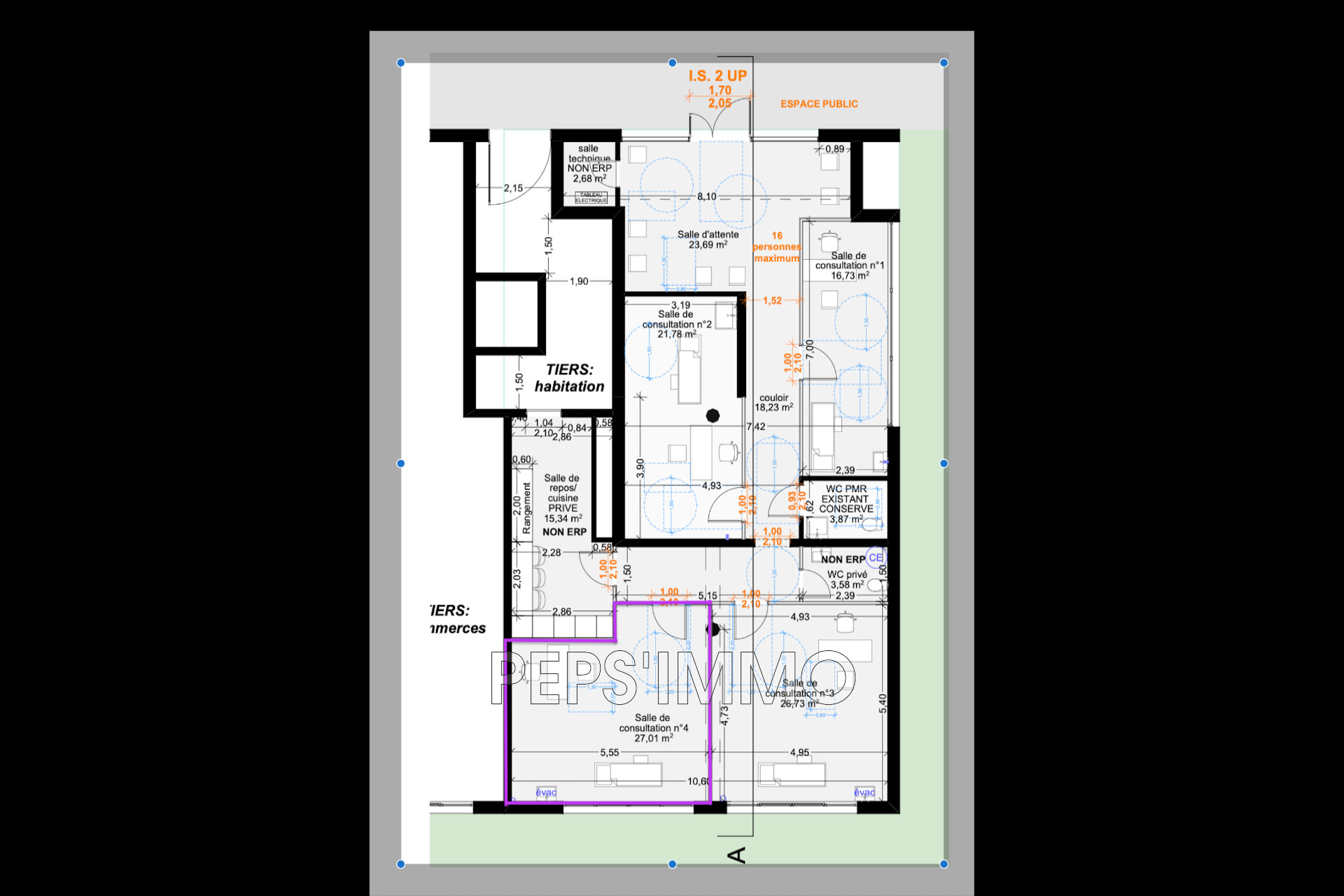
Le local concerné apparaît encadré en violet sur le plan joint.
Les atouts du bien :
Superficie : 27 m²
Local neuf situé en copropriété
Environnement : pôle santé, parking, espaces verts, accès PMR
Espace lumineux et fonctionnel
Idéal pour profession médicale ou paramédicale
Conditions locatives :
Loyer : 920 ¤ charges comprises
Dépôt de garantie : 1840 ¤
Honoraires d'agence à la charge du preneur : 1656 ¤ TTC
Disponibilité : début avril
Une belle opportunité pour installer votre activité dans un cadre professionnel agréable.
N'hésitez pas à nous contacter pour une éventuelle visite.