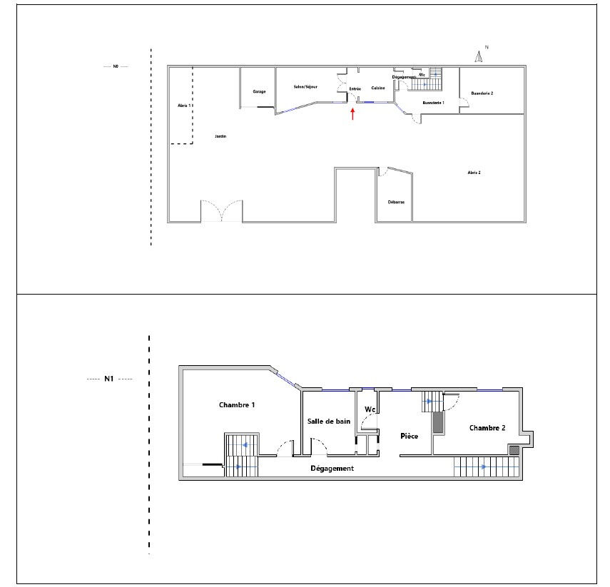
En vente Maison 5 pièces 163 m2
| Ville | NANTERRE |
| Pays | Autre |
| Type de bien | Maison |
| Surface | 163 m2 |
| Nombre de pièces | 5 pièces |
| Prix | 850 000,00 € |
| Informations sur l'annonceur | |
|---|---|
| Annonce de professionnel |
|
| Agence | AGENCE DE VALLIERE - Nanterre Centre Voir toutes les annonces |
| Adresse | 2 RUE DU MARCHE PLACE DES BELLES FEMMES |
| 92000 NANTERRE | |
| Téléphone Fixe | 0155173333 |
| Portable |
Description
Les Agences De Vallière vous proposent cet ensemble immobilier atypique comprenant une maison principale, une cave et un grand hangar, édifiés sur une parcelle de 435 m² situé dans le coeur de ville de Nanterre, à cote du cinéma, à 3 minutes du RER L'ensemble offre un important potentiel d'agrandissement et d'aménagement, idéal pour un projet de transformation ou de valorisation. Des travaux conséquents sont à prévoir, nécessitant un investissement significatif. UNE EXCLUSIVITEE DES AGENCES DE VALLIERE