En vente Appartement 3 pièces 70 m2
| Ville | NANTERRE |
| Pays | Autre |
| Type de bien | Appartement |
| Surface | 70 m2 |
| Nombre de pièces | 3 pièces |
| Prix | 335 000,00 € |
| Informations sur l'annonceur | |
|---|---|
| Annonce de professionnel |
|
| Agence | AGENCE DE VALLIERE - Nanterre Centre Voir toutes les annonces |
| Adresse | 2 RUE DU MARCHE PLACE DES BELLES FEMMES |
| 92000 NANTERRE | |
| Téléphone Fixe | 0155173333 |
| Portable |
Description
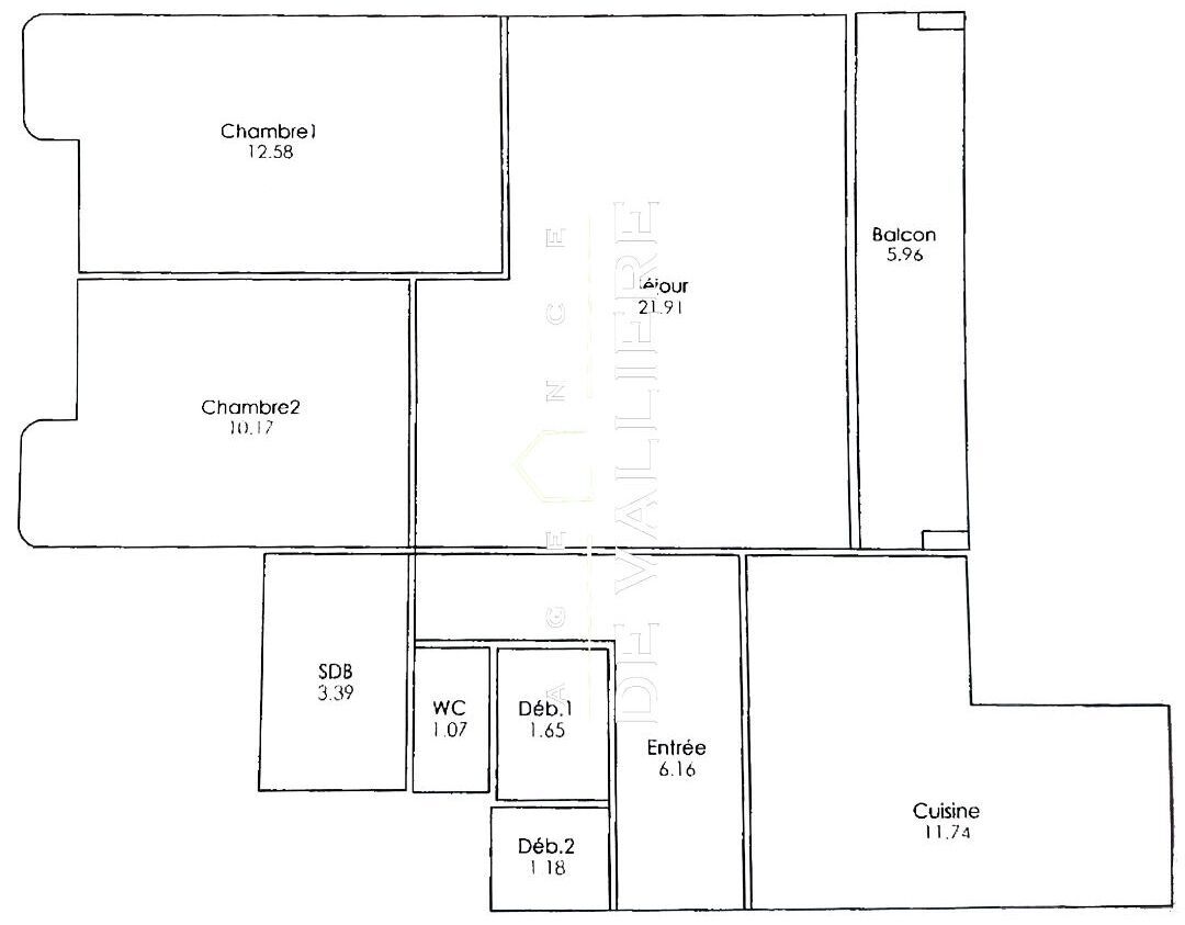
Si vous cherchez un grand 3 pièces en dernier étage, avec un balcon et une superbe vue sans vis à vis exposition sud, cet appartement à la limite de Rueil est fait pour vous. Dans une résidence familiale recherchée, nous vous présentons ce 3 pièces très bien agencé qui dispose : d'une entrée avec cellier et dressing, d'une cuisine dinatoire aménagée et entièrement équipée, d'un séjour de 22m² donnant sur un balcon de 6m² (orienté Sud), de 2 chambres avec placards, d'une belle salle de douche (grande douche à l'italienne) et d'un WC séparé. Situé à quelques minutes à pied du centre ville, des commerces, des écoles et des transports. L'appartement est vendu avec un emplacement de parking et une cave en sous-sol. Résidence sécurisée avec gardien, parc pour enfants, espaces verts, local vélos, parking invités, espace lavage voiture dans le parking. Les photos présentées avec des meubles sont générées par l'IA (sauf salle de douche). (4.69 % honoraires TTC à la charge de l'acquéreur.) Copropriété de 1232 lots - dont 363 lots habitation. Charges annuelles : 3201.16 euros.