En vente Maison 4 pièces 95 m2
| Ville | PERRIGNIER |
| Pays | Autre |
| Type de bien | Maison |
| Surface | 95 m2 |
| Nombre de pièces | 4 pièces |
| Prix | 485 000,00 € |
| Informations sur l'annonceur | |
|---|---|
| Annonce de professionnel |
|
| Agence | BERSOT IMMOBILIER Evian les Bains Voir toutes les annonces |
| Adresse | |
| 74500 EVIAN LES BAINS | |
| Téléphone Fixe | 0450831229 |
Description
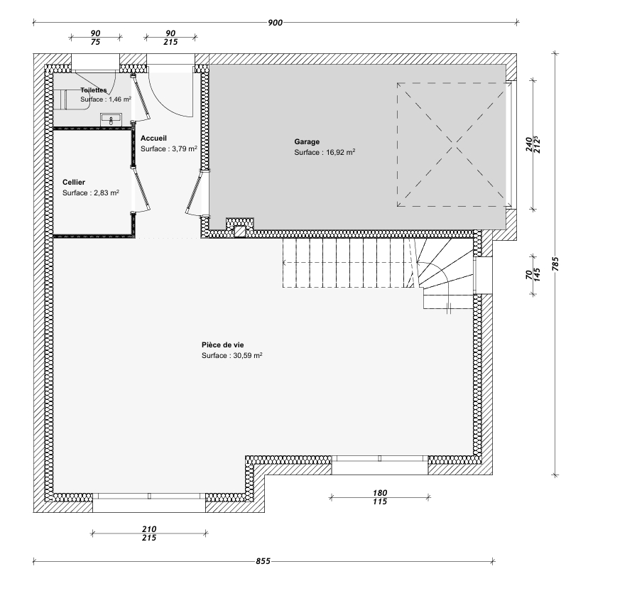
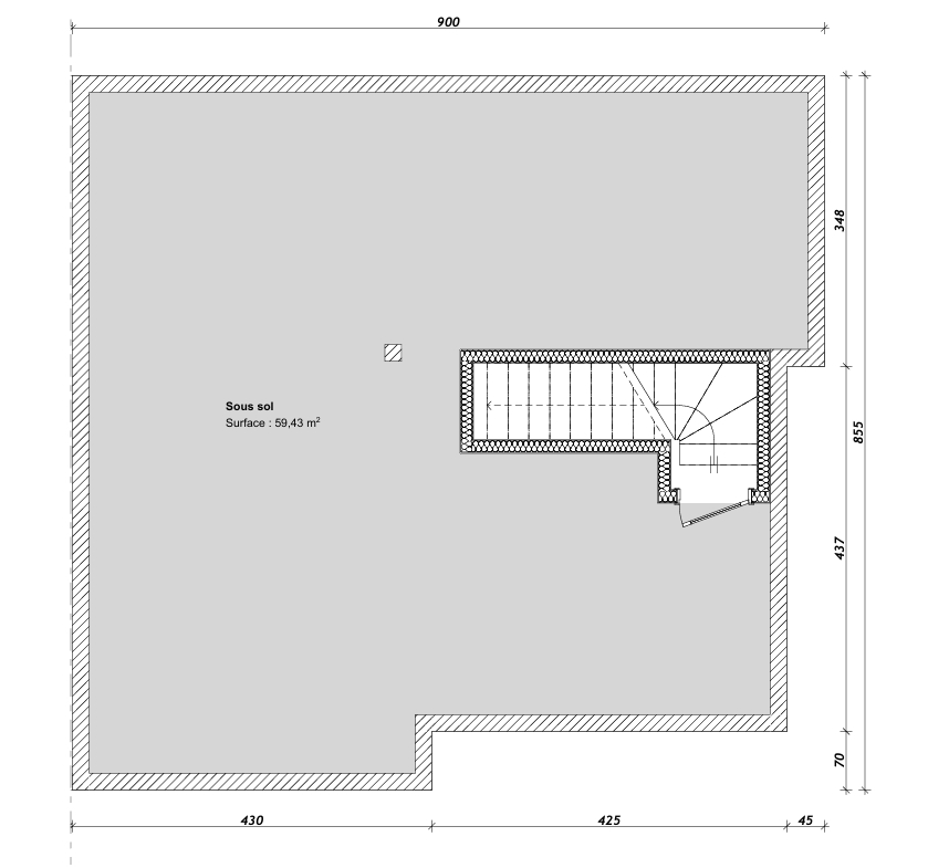
Idéalement située dans un quartier calme de Perrignier, à seulement 1 km de la gare et du centre du village, venez découvrir cette villa mitoyenne de 95 m² Sur un terrain de 325 M2, la villa se compose d'un rez-de-chaussée comprenant une pièce de vie de 30.59 M2, un cellier, un WC séparé et un garage de 17 m² A l'étage, 3 chambres dont une de 15.82 M2 et une salle de bains Pour finir, un sous-sol complet aménageable selon vos envie de 59 m² La villa est conforme norme RE2020 avec contrat CCMI Il faudra prévoit la taxe aménagement et raccordement, peinture, parquet, cuisine et embellissement en supplément Pour plus d'informations ou pour organiser une visite, contactez-moi dès maintenant : Maéva Roy-Ruffier, Agente commerciale, EI enregistré au RSAC de Thonon-les-Bains sous le n°928 561 042 O618721655 mroy-ruffier@bersot.net