Description
Nestled in one of Madrid’s most prestigious areas, just moments from Plaza de los Hermanos Bécquer, the renowned Serrano Street, and the United States Embassy, this exclusive exterior residence redefines sophisticated city living. Located on the second floor of a distinguished classic building with concierge service, the property has been fully renovated to offer a seamless blend of timeless charm and modern design.
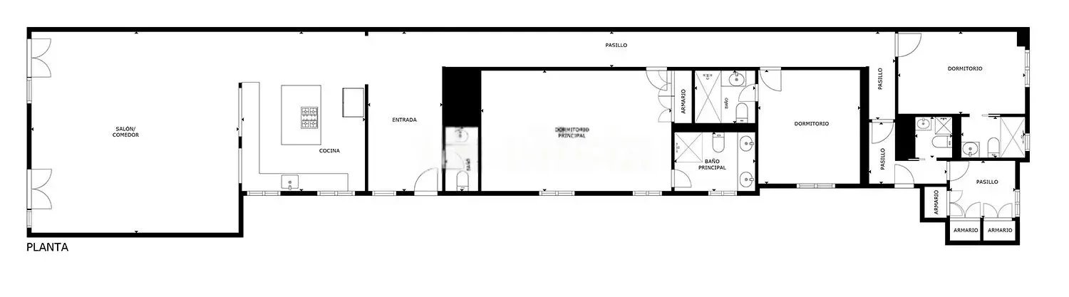
With a total built area of 243 sqm, the apartment stands out for its thoughtfully designed layout and abundant natural light, enhanced by large exterior-facing windows. The interiors have been carefully conceived to balance comfort and style, naturally separating the living and resting areas while creating an ideal setting for both family life and entertaining.
The private quarters feature three spacious double bedrooms, each with an en-suite bathroom, ensuring maximum privacy and comfort. A guest powder room further enhances convenience for visitors.
The main living area centers on an expansive open-plan living and dining space with an integrated kitchen, designed to be both elegant and inviting. The kitchen is fully equipped with high-end integrated appliances and boasts an impressive double island that serves as the social and functional centerpiece of the home. A refined bar area within this space adds an exclusive touch, perfect for hosting and entertaining.
Additionally, the property includes a separate service area with its own bedroom, bathroom, and laundry space, offering both practicality and discretion.
A truly exceptional residence that combines prime location, refined design, and superior quality, ideal for those seeking an outstanding home in one of Madrid’s most sought-after addresses.