En vente Appartement 2 pièces 40 m2

Ville PARIS
Pays Autre
Type de bien Appartement
Surface 40 m2
Nombre de pièces 2 pièces
Prix 423 000,00 €
Informations sur l'annonceur
Annonce de professionnel
Agence LA MAISON DE L'IMMOBILIER
Voir toutes les annonces
Adresse 112 rue Réaumur
75002 Paris
Téléphone Fixe 0140390909
Portable 0607916404

Description

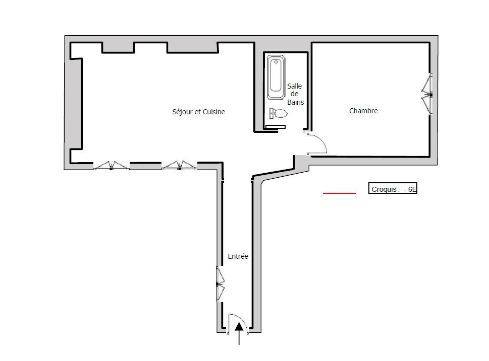
Proche du métro Sentier, en plein coeur du deuxième arrondissement de Paris, nous vous présentons ce charmant deux pièces situé au sixième étage sans ascenseur. Il s'agit d'un appartement au calme absolu. Il se compose d'une entrée, d'un séjour agréable et lumineux avec une cuisine ouverte aménagée. La pièce de vie bénéficie d'une belle clarté et d'une ambiance chaleureuse, idéale pour un quotidien paisible en plein Paris. Côté nuit, une chambre indépendante permet un vrai confort de vie. L'appartement dispose également d'une salle de bains avec WC. L'ensemble est cohérent, bien agencé. Ce bien séduira celles et ceux qui recherchent un appartement calme, central, bien entretenu, avec du charme, au coeur d'un quartier vivant et bien desservi. Contactez La Maison de l'Immobilier pour organiser une visite ou obtenir plus d'informations. La Maison de l'Immobilier est une agence indépendante spécialisée dans le centre de Paris. Nous proposons un accompagnement sur mesure, humain et réactif, pour chaque projet de location ou de vente. (4.44 % honoraires TTC à la charge de l'acquéreur.) Copropriété de 32 lots. Charges annuelles : 652 euros.

Les photos du bien

Les diagnostics